Pest megye, Diósd

 

Ingatlan adatai

Irányár: 74 990 000 Ft
Típus: ház
Kategória: eladó
Alapterület: 70 m2
Fűtés: egyéb
Állapota: -
Szobák száma: 2
Építés éve: 1970
Szintek száma: -
Telekterület: 1 045 m2
Kert mérete: 1 045 m2
Erkély mérete: 20 m2
Felszereltség: -
Parkolás: -
Kilátás: -
Egyéb extrák:  
-

Részletes leírás

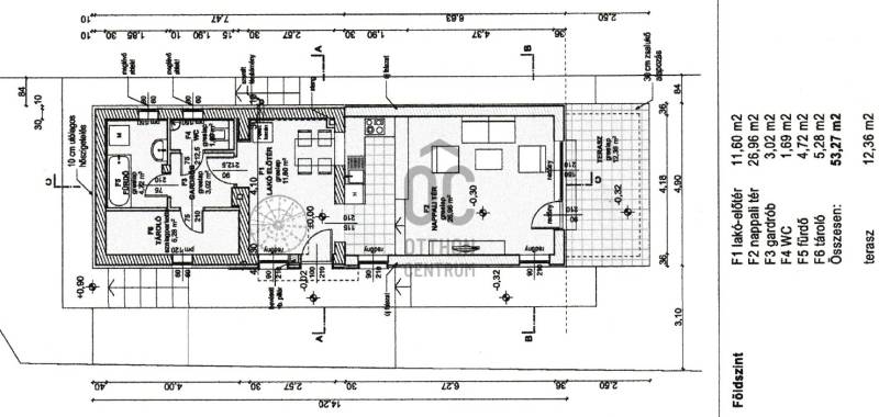
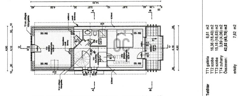
Álmai otthona várja Diósdon legkeresettebb helyén Felsőgazdag dűlő város részén, ahol a természet közelsége és a városi élet előnyei harmonikusan találkoznak. Ez a nettó 70,3 négyzetméteres (Bruttó 85 m2), jelenleg hétvégi ház besorolású ingatlan ideális választás fiatal felnőttek számára, akik szeretnék élvezni a csendes, barátságos környezetet, miközben könnyedén elérhetik a város nyújtotta lehetőségeket. Az ingatlan 1045 m2 telken helyezkedik el, amely bőséges teret biztosít a szabadidős tevékenységekhez, kertészkedéshez, vagy akár egy kis medence kialakításához is. Helyiségei: Földszint:-Nappali - konyha 26,96 m2-Előszoba 11,6 m2-Fürdőszoba 4,72 m2-WC 1,69 m2-Közlekedő 6,71 m2-Tároló 5,28m2-Gardobe 1,69 m2-Terasz 12,36 m2Emelet:-Szoba 16,36 m2-Közlekedő 2,0 m2Az ingatlan állapota jó, jelenleg is lakott. Elindult a családi házzá való átépítése, aminek minden engedélye magvan. Így Önnek csak a személyes ízlésének megfelelően kell befejeznie, amennyiben lát benne fantáziát3 db klímaberendezés gondoskodik a fűtésről és a nyári melegben a hűtésről.Diósd Felsőgazdagdűlő városrészének előnye, hogy csendes, mégis közel van a főbb közlekedési csomópontokhoz. A környék biztonságos, családbarát, és számos zöld területet kínál, ahol a szabadban való kikapcsolódásra van lehetőség. Az iskolák, boltok és szolgáltatások mind a közelben találhatóak, így a mindennapi élet könnyedén megoldható. Ez az ingatlan nem csupán egy ház, hanem egy lehetőség a jövőjére, amelyben megvalósíthatja álmait. Legyen szó saját otthonról vagy befektetési céllal történő vásárlásról, ez a kiváló elhelyezkedés és a környék adottságai garantálják, hogy jó döntést hoz. Amennyiben felkeltette érdeklődését ez a remek lehetőség, kérem, ne habozzon kérdéseivel keresni! Bizalommal állok rendelkezésére a hét bármely napján, hogy segítsek Önnek a legjobb döntés meghozatalában.Ez az ingatlan a \"Felező csomag\" megbízási portfólióhoz tartozik. Részletek az Otthon Centrum weboldalán.

Hirdető adatai

Nyomtatóbarát változata
Ingatlan hirdetés ajánlása
Hirdető neve: Otthon Centrum
Kapcsolattartó: Bögös Zsolt
Hirdető telefonszáma: +36 70 461 9991
Honlap: -