Budapest, XIII.kerület

 

Ingatlan adatai

Irányár: 89 900 000 Ft
Típus: lakás (panel)
Kategória: eladó
Alapterület: 66 m2
Fűtés: távfűtés
Állapota: -
Szobák száma: 3
Építés éve: 1978
Szintek száma: -
Telekterület: -
Kert mérete: -
Erkély mérete: 2 m2
Felszereltség: -
Parkolás: -
Kilátás: kertre néző
Egyéb extrák:  
-

Részletes leírás

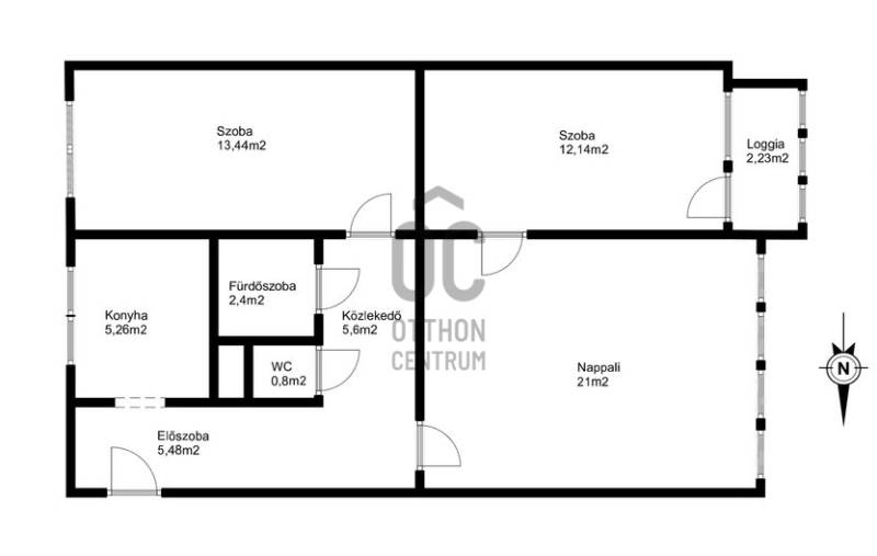
Eladásra kínálunk Budapest egyik legnépszerűbb részén, a XIII. kerületben egy 66 m²-es, 1. emeleti, 3 szobás, loggiás panellakást. Ha fontos Önnek a jó közlekedés, de nem szívesen mondana le a nyugalomról, ez az ingatlan tökéletes választás!Miért érdemes ezt a lakást választania?- Egész nap világos: A kelet–nyugati tájolásnak köszönhetően a reggeli és a délutáni órákban is élvezheti a természetes fényt.- Ideális elosztás: A nappali mellett két különnyíló hálószoba biztosítja a család minden tagjának a privát szférát.- Komfort és nyugalom: A szobák részben parkra, részben csendes utcára néznek. A nyári melegben a nappaliban és az egyik szobában felszerelt klíma gondoskodik a kellemes hőmérsékletről.- Praktikum: Beépített szekrények segítik a tárolást, a fürdőszoba és a WC pedig külön helyiségben található.- Jó állapotú: Műanyag nyílászárók, gépesített konyha (beépített sütő és főzőlap) és rendezett belső terek várják az új tulajdonost.A ház:- Rendezett, liftes panelépület, tiszta lépcsőházzal és jó lakóközösséggel.- Környék és közlekedés – Minden egy karnyújtásra:- A lakás elhelyezkedése verhetetlen!A környék:- Közlekedés: M3 metró, 1-es és 14-es villamos, buszok és trolik pár perc sétával elérhetők.- Infrastruktúra: Boltok, iskolák, óvodák, orvosi rendelő 5 percen belül.- Kikapcsolódás: A Margit-sziget karnyújtásnyira van – tökéletes helyszín sportoláshoz, sétához vagy esti lazításhoz.Kinek ajánljuk?Kiváló választás fiatal pároknak, családoknak, de az egyetemek és a Váci úti irodafolyosó közelsége miatt befektetésnek, kiadásra is kiemelkedő lehetőség.Az energetikai tanúsítvány készítése folyamatban van, amint rendelkezésre áll, úgy azzal a hirdetés frissítésre kerül.Ne maradjon le róla! Az ilyen adottságú, 3 szobás lakások gyorsan gazdára találnak a kerületben.Hívjon bizalommal, és nézzük meg együtt új otthonát akár hétvégén is!

Hirdető adatai

Nyomtatóbarát változata
Ingatlan hirdetés ajánlása
Hirdető neve: Otthon Centrum
Kapcsolattartó: Altsach Valéria
Hirdető telefonszáma: +36 70 412 3196
Honlap: -