Pest megye, Inárcs

 

Ingatlan adatai

Irányár: 47 000 000 Ft
Típus: ház
Kategória: eladó
Alapterület: 108 m2
Fűtés: -
Állapota: -
Szobák száma: 4
Építés éve: 2000
Szintek száma: -
Telekterület: 742 m2
Kert mérete: 742 m2
Erkély mérete: 19 m2
Felszereltség: -
Parkolás: -
Kilátás: -
Egyéb extrák:  
-

Részletes leírás

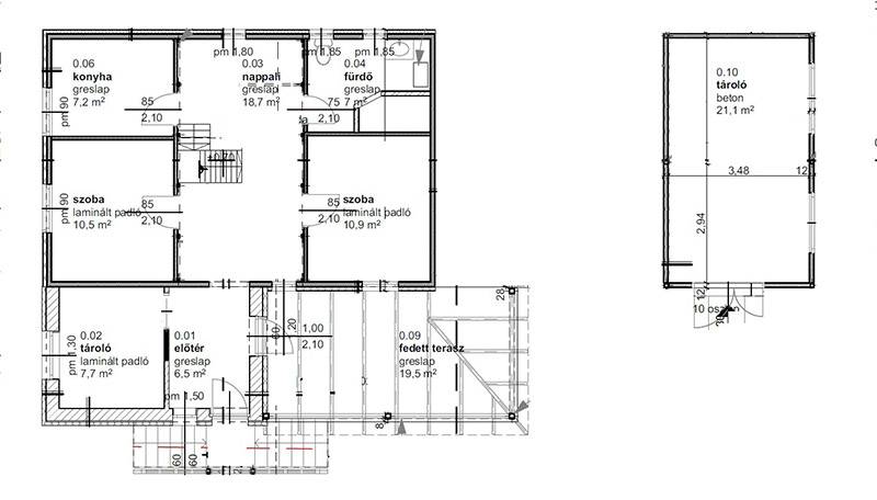
Inárcs nagyközségben kínálok megvételre egy kiváló lehetőségeket rejtő, úgynevezett „ráckevei gyorsházat”, amely szerkezetében a panelépítéshez hasonló, előregyártott elemekből készült.Az ingatlan egy 742 nm-es telken helyezkedik el, nyugodt, élhető környezetben. A ház földszinti alapterülete 68,5 nm, a tetőtérben pedig további 40 nm hasznos tér került kialakításra, így ideális családi otthon 4 szobával.Az épület külső falazata már 10 cm grafitos hőszigeteléssel részben ellátott, ami kedvező energiahatékonyságot biztosít a későbbiekben. A közművek tekintetében teljes az ellátottság, az ingatlan összközműves. Nyílászárói 2 éve cserélve lettek. Fűtése gázcirkó, radiátorokkal, illetve klíma. A hasznos alapterület egy tágas fedett terasszal van kibővítve. Az ingatlan telekkönyvileg rendezve van, tulajdoni lapján teher nincs bejegyezve. Az épület tervrajzokkal és EMI engedéllyel rendelkezik.A ház jelenleg befejezetlen állapotban van, ami lehetőséget ad arra, hogy az új tulajdonos saját elképzelései szerint alakítsa ki a belső tereket. Ideális választás mindazoknak, akik nem szeretnének kompromisszumot kötni egy kész ingatlan adottságaival kapcsolatban.Főbb jellemzők:• „ráckevei” (előregyártott, panel jellegű) építési technológia • 68,5 nm földszint (Nappali, 2 szoba, konyha, fürdő, tároló + 40 nm tetőtér (2 szoba)• 742 nm telek • 10 cm grafitos hőszigetelés • összközműves • befejezetlen állapot – saját igényre alakíthatóAmennyiben érdekes lehet önnek ez a családi ház, kérem, keressen a megadott elérhetőségen.

Hirdető adatai

Nyomtatóbarát változata
Ingatlan hirdetés ajánlása
Hirdető neve: Nagy Ingatlan
Kapcsolattartó: Kecskés Zoltán
Hirdető telefonszáma: 06-70-77-22-430
Honlap: -