Somogy megye, Ádánd

 

Ingatlan adatai

Irányár: 45 000 000 Ft
Típus: ház
Kategória: eladó
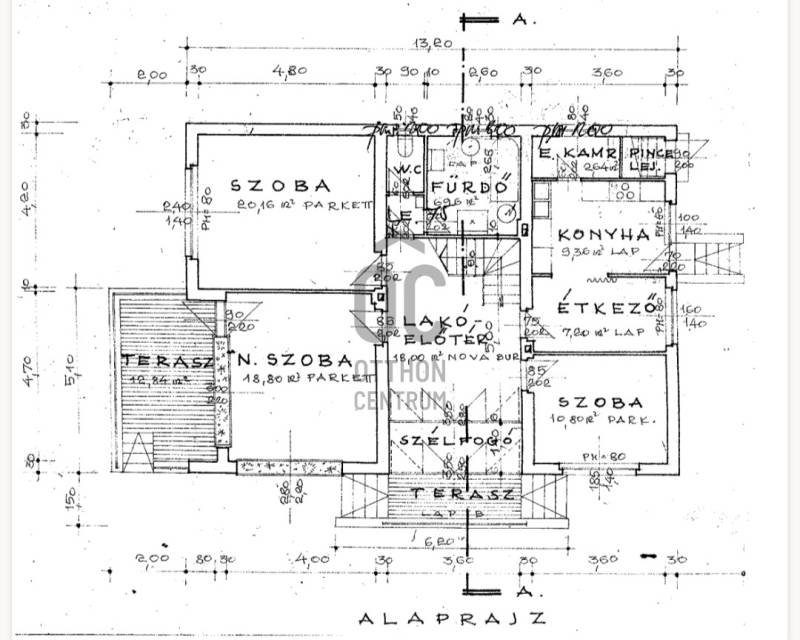
Alapterület: 95 m2
Fűtés: gáz (cirko)
Állapota: -
Szobák száma: 3
Építés éve: 1973
Szintek száma: -
Telekterület: 1 189 m2
Kert mérete: 1 189 m2
Erkély mérete: 19 m2
Felszereltség: -
Parkolás: -
Kilátás: -
Egyéb extrák:  
-

Részletes leírás

Fedezd fel új otthonod Ádándon, Somogy vármegyében! Ez a jó állapotú ház tökéletes választás, ha csendes, barátságos környezetben szeretnél élni. Az ingatlan 95 nm-en terül el, és egy 1189 nm-es telek része, így bőven van hely a kikapcsolódásra és a szabadidős tevékenységekre. A három tágas szoba egy +18 négyzetmézeres lakóelőtérből nyílik. A konyha -étkező világos, modern kialakítású. Az ingatlanhoz tartozik egy 13 nm-es terasz és egy 6 nm-es erkély, ahol a reggeli kávédat élvezheted a friss levegőn, miközben gyönyörködsz a környék nyújtotta panorámában. Jellemzők: A ház gáz- vagy vegyestüzelésű központi fűtéssel rendelkezik.A tehermentes ingatlan lehetőséget ad arra, hogy azonnal birtokba vedd, és akár kisállattal is költözhetsz. A tetőtér beépíthető, betonfödémes.Fa nyílászárók, két bejárat a lakótérbe, tégla építésű.32 m2-es melléképületben garázs, műhely és tároló található.A környék ellátottsága kiváló, így minden szükséges szolgáltatás könnyen elérhető közelségben található. A közlekedés kitűnő, a közelben buszmegálló található (200méteren belül), amely gyors kapcsolatot biztosít Siófok felé óránkénti buszközlekedéssel. A vasútállomás 1km-en belül.A csendes utcák és a rendezett kertek biztosítják, hogy a mindennapjaid nyugodtan teljenek. Az ingatlan bővítési lehetőségei szintén vonzóak, így ha nagyobb térre van szükséged, a ház átalakítása vagy bővítése is könnyedén megvalósítható a tetőtér beépítésével. Az egyedi tervezésű otthon a funkcionalitás szempontjából is figyelemre méltó. Érdeklődj bátran, és tudd meg, hogyan lehet a tiéd ez a jó kondíciókkal rendelkező családi ház, amely nemcsak otthon, hanem egy remek befektetés is lehet! Kérdéseiddel bizalommal kereshetsz, szívesen segítek bármiben, ami a vásárlással kapcsolatos!

Hirdető adatai

Nyomtatóbarát változata
Ingatlan hirdetés ajánlása
Hirdető neve: Otthon Centrum
Kapcsolattartó: Takács Anna
Hirdető telefonszáma: +36 70 461 9421
Honlap: -