Budapest, XII.kerület

Kléh István utca 

Ingatlan adatai

Irányár: 116 000 000 Ft
Típus: lakás (tégla)
Kategória: eladó
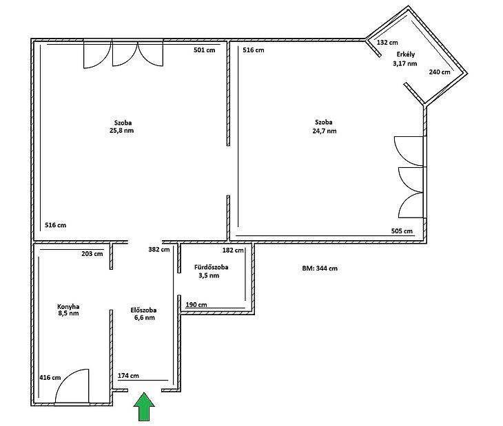
Alapterület: 66 m2
Fűtés: gáz (cirko)
Állapota: -
Szobák száma: 2
Építés éve: 1940
Szintek száma: -
Telekterület: -
Kert mérete: -
Erkély mérete: -
Felszereltség: -
Parkolás: -
Kilátás: panorámás
Egyéb extrák:  
-

Részletes leírás

Kizárólag Irodánk kínálatában!Eladó a XII. kerületben, a Kléh István utcában, egy jó állapotú társasház első emeletén, egy közepes állapotú, 66 nm + 3 nm erkélyes, 2 szobás, világos, panorámás, klímás lakás.A lakásban a külső nyílászárók és a fűtőtestek cseréje megtörtént.A társasház homlokzat és lépcsőház felújítása 1990-ben történt meg.A közösköltség 17.000 Ft, mely tartalmazza az általános költségeket és a felújítási alapot.Tartozik a lakáshoz egy közös tároló is.Tömegközlekedés szempontjából 1-2 perc sétatávolságra buszok és villamosok járnak.Kérdés esetén keressenek minket bizalommal!Irodánk ingyenes hiteltanácsadással áll ügyfeleink rendelkezésére.VEVŐINK RÉSZÉRE A KÖZVETÍTÉS DÍJMENTES.A hirdetésben szereplő adatok tájékoztató jellegűek.

Hirdető adatai

Nyomtatóbarát változata
Ingatlan hirdetés ajánlása
Hirdető neve: MPD Hungary Kft.
Kapcsolattartó: Dodici Quartiere Kft.
Hirdető telefonszáma: +36706500700
Honlap: -