Pest megye, Vecsés

 

Ingatlan adatai

Irányár: 144 900 000 Ft
Típus: lakás (tégla)
Kategória: eladó
Alapterület: 115 m2
Fűtés: gáz (cirko)
Állapota: -
Szobák száma: 3
Építés éve: 1981
Szintek száma: -
Telekterület: -
Kert mérete: -
Erkély mérete: 9 m2
Felszereltség: -
Parkolás: -
Kilátás: utcai
Egyéb extrák:  
-

Részletes leírás

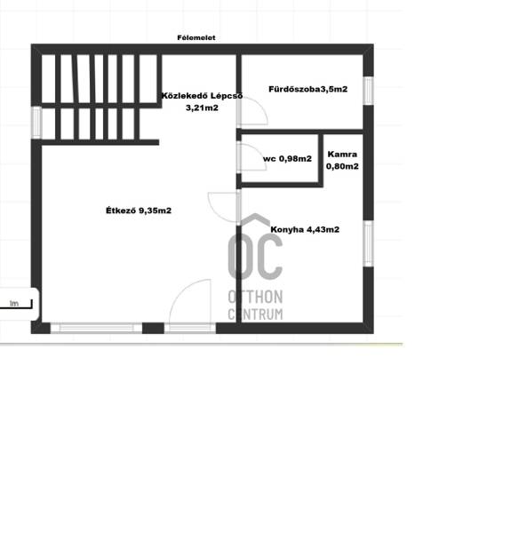
BEFEKTETŐK FIGYELEM – KOMPLEX INGATLAN KIVÁLÓ ÜZLETI POTENCIÁLLAL VECSÉSEN!Eladásra kínálunk Vecsés frekventált részén, 363 m2-es telken, egy nettó 139 m²-es,szinteltolásos, többfunkciós családi házat üzlethelyiséggel ,raktárral, amely kiváló lehetőséget kínál vállalkozás működtetésére és stabil hozamú befektetésre egyaránt.Az ingatlan egyik legnagyobb előnye, hogy lakhatás és üzleti tevékenység egy helyen valósítható meg, ugyanakkor a két funkció külön is hasznosítható vagy bérbe adható, így rugalmas bevételi konstrukciót biztosít. Lakóingatlan – 76 m²A 2005-ben teljes körűen felújított lakrész praktikus elrendezésű:-2 szoba-pihenő/közlekedő-fürdőszoba-külön WC-konyha + kamra-étkező-galériaA lakás két külön bejárattal rendelkezik, ami ideális akár többgenerációs használatra vagy bérbeadásra. Üzlethelyiség – 63 m²A jelenleg is működő üzlet:-20 éve stabilan, problémamentesen üzemel-kialakítása: kiszolgáló tér,+30,70 m2-es szociális helyiség és raktár-Pincében további raktár, kazánház,öltöző-többféle üzleti tevékenységre alkalmas, könnyen átalakíthatóIgény esetén a teljes vállalkozás (Kft.) is megvásárolható a meglévő vevőkörrel együtt, ami azonnali bevételi forrást jelenthet az új tulajdonos számára. Befektetési előnyökKét külön egység → dupla bérbeadási lehetőségAz ingatlan elhelyezkedése kiemelkedő: a Liszt Ferenc Nemzetközi Repülőtér fejlesztési övezetének közelébenFolyamatosan fejlődő környék → értéknövekedési potenciálAzonnal hasznosítható, működő üzleti háttérTelek és egyéb jellemzők:-137 m² saját tulajdonú telekrész-zárt gépkocsi tároló-udvari parkolás 2 autó számára-központi fűtés gázkazánnal-meleg víz villanybojlerrel-tehermentes, gyorsan birtokba vehető Kiváló elérhetőség:-Budapest külső kerületei néhány perc autóval-távolsági busz megálló: ~fél perc-vasút és helyi busz: ~5 perc sétaEz az ingatlan ideális választás mindazok számára, akik biztos megtérülést nyújtó befektetést, vagy saját vállalkozással kombinált otthont keresnek egy dinamikusan fejlődő lokációban. További információért és megtekintésért keressen bizalommal!Energetikai besorolása H

Hirdető adatai

Nyomtatóbarát változata
Ingatlan hirdetés ajánlása
Hirdető neve: Otthon Centrum
Kapcsolattartó: Nagy Éva
Hirdető telefonszáma: +36 70 716 8606
Honlap: -