Vas megye, Sárvár

 

Ingatlan adatai

Irányár: 99 900 000 Ft
Típus: ház
Kategória: eladó
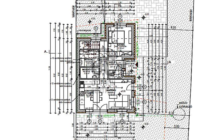
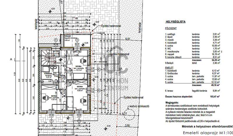
Alapterület: 104 m2
Fűtés: gáz (cirko)
Állapota: új
Szobák száma: 5
Építés éve: 2026
Szintek száma: -
Telekterület: 200 m2
Kert mérete: 200 m2
Erkély mérete: 7 m2
Felszereltség: -
Parkolás: -
Kilátás: -
Egyéb extrák:  
-

Részletes leírás

Sárváron, az ország egyik legdinamikusabban fejlődő fürdővárosában, csendes, átmenő forgalomtól mentes zsákutcában, a Sárvári Gyógy-, és Termálfürdőtől 700 m-re, eladó egy 104 nm-es, nappali + 4 szobás családi ház 7 nm-es terasszal és 200 nm-es önálló, körbekerített kerttel és térkövezett kocsibeállóval.A kiváló referenciákkal és több évtizedes tapasztalattal rendelkező, megbízható, korrekt kivitelező a kialakításnál a legmodernebb műszaki megoldásokat alkalmazza. Ez teljes tégla falazatot, 15 cm-es homlokzati szigetelést, monolit betonfödémet, három rétegű műanyag nyílászárókat foglal magába redőnnyel és szúnyoghálóval, a fűtést kondenzációs gázkazán biztosítja padlófűtéses hőleadással és 2 db split-klímával. A hideg-melegburkolatok, szaniterek, belső ajtók egyedi igény szerint választhatók.Az ötletes tervezésnek köszönhetően egy funkcionális, élhető lakótér kerül kialakításra, amerikai konyhás nappalival, 4 db hálószobával, 2 db fürdővel ( kádas, zuhanyzós ), 2 db WC-vel, gépészeti helyiséggel.Ne döntsön elhamarkodottan - tekintse meg a referenciamunkákat- nem fog csalódni!Rugalmas fizetési ütemezés, hitel,-és CSOK ügyintézés.AJÁNDÉK KONYHABÚTOR 1,5 MFT ÉRTÉKBEN !!Vételár: 99,9 MFt.Költözés: 2026.06.30.Hitelre van szüksége?Az Otthon Centrum az ország egyik legnagyobb és legmegbízhatóbb hitelközvetítőjeként, teljes körű és díjmentes hitelügyintézéssel, biztosításkötéssel áll rendelkezésére!Kérje személyre szabott ajánlatunkat Kollégáinktól!

Hirdető adatai

Nyomtatóbarát változata
Ingatlan hirdetés ajánlása
Hirdető neve: Otthon Centrum
Kapcsolattartó: Derecskei Csaba
Hirdető telefonszáma: +36 70 716 9391
Honlap: -