Budapest, XIII.kerület

 

Ingatlan adatai

Irányár: 169 000 000 Ft
Típus: lakás (tégla)
Kategória: eladó
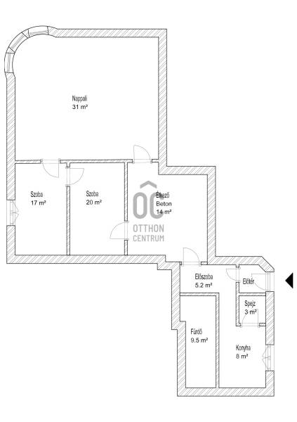
Alapterület: 106 m2
Fűtés: házközponti egyedi méréssel
Állapota: -
Szobák száma: 4
Építés éve: 1920
Szintek száma: -
Telekterület: -
Kert mérete: -
Erkély mérete: -
Felszereltség: -
Parkolás: -
Kilátás: utcai
Egyéb extrák:  
-

Részletes leírás

Eladó nagypolgári lakás Újlipótváros szívében, kiváló lokációvalBudapest XIII. kerületében, Újlipótváros egyik legkedveltebb utcájában, a Hegedűs Gyula utcában eladó egy 106 nm-es, nagypolgári hangulatú lakás. Az ingatlan a társasház második emeletén található, klasszikus elrendezéssel és tágas terekkel.A lakás 4 szobás, emellett egy tágas fürdőszoba, konyha, előszoba, valamint a konyhához kapcsolódó praktikus spájz is kialakításra került. Keleti tájolása és sarok kialakítása miatt a lakás világos, napfényes terekkel rendelkezik, az ablakok redőnnyel felszereltek, így a fényviszonyok igény szerint szabályozhatók.A fűtést egyedi mérésű házközponti rendszer biztosítja. A közös költség és a rezsi együttesen körülbelül 50.000 Ft, ami a lakás méretéhez képest kedvező fenntartást jelent.Az ingatlan jogilag rendezett, és akár 2 hónapon belül birtokba vehető.Újlipótváros Budapest egyik legkedveltebb városrésze, ahol a klasszikus nagypolgári hangulat találkozik a modern városi élettel. A környéken számos kávézó, étterem, üzlet és szolgáltatás található, a Duna-part és a Margitsziget közelsége kiváló lehetőséget nyújt a kikapcsolódásra.Amennyiben bármilyen kérdése merülne fel az ingatlannal kapcsolatban, vagy személyesen is megtekintené, keressen bizalommal!

Hirdető adatai

Nyomtatóbarát változata
Ingatlan hirdetés ajánlása
Hirdető neve: Otthon Centrum
Kapcsolattartó: László Emma
Hirdető telefonszáma: +36 70 716 8531
Honlap: -